网站首页 | 网站导航 | 留言反馈
『居家空间』海沧维多利亚
更新:2019-04-09 10:08:21      点击:
『居家空间』海沧维多利亚
详情

『居家空间』海沧维多利亚

一种情怀叫做北欧风,唯有生活和诗不可辜负。

客厅效果图

客厅摒弃了传统的电视背景墙+电视+电视柜,根据业主生活习惯及兴趣爱好等各方面条件以投影仪及幕布代替了电视,下方放置钢琴,将有限的空间发挥更大的作用。

以谷仓门为分割将客餐厅及卧室隔开,起到一定装饰作用。关闭谷仓门时对主人休息区添加了一层保护色,更为注重业主隐私。当谷仓门敞开时又拓宽了视野,分割两个空间的同时在整个空间中起到一种神秘感,让人想对其身后的空间一探究竟。


餐厅效果图

客厅与餐厅之间以吧台为界将两个巧妙地区域分割开来,迎合了现代年轻人追求潮流时尚的生活方式又具有一定的小资情调之感。用吧台来进行隔断,多出了一个功能区为家庭增添了酒吧的情趣的同时,也充分利用了空间。闲暇时间坐下来一品美酒也不失惬意。

现场完工图


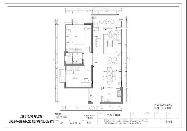
平面布置图

就像一首温和的诗:青青河畔,情扉春晓。小桥邂逅,和风悄悄。花开时候,随心起舞。弦上行间,余音袅袅。生活,情感,如此纯粹。日照,春雨,一切安好。

项目风格:北欧

项目面积:80m2

同欣瑜家装案例展示

设计风格:北欧风格

联系电话:0592-7028069

时尚的设计,温馨的价格!


想了解更多装修资讯,请关注欣瑜装饰公众号

 


相关
网站首页 | 网站导航 | 留言反馈