详情
项目:同安建发天悦
空间有限,设计无限
同欣瑜装饰与您共同实现您的梦想空间。

客厅视角
餐厅视角
休闲区
卧室视角
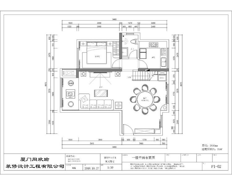
平面图
想了解更多装修资讯,请关注欣瑜装饰公众号
相关

客厅视角
餐厅视角
休闲区
卧室视角
平面图
想了解更多装修资讯,请关注欣瑜装饰公众号