网站首页 | 网站导航 | 留言反馈
『商业空间』包味来小吃店
更新:2020-07-10 09:24:40      点击:
『商业空间』包味来小吃店
详情


前台效果图

通道效果图

用餐区效果图一

用餐区效果图二

用餐区效果图三

用餐区效果图四

用餐区效果图五


一楼平面布置图

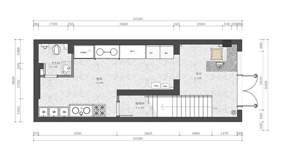
二楼平面布置图


想了解更多装修资讯,请关注欣瑜装饰公众号

相关
网站首页 | 网站导航 | 留言反馈