网站首页 | 网站导航 | 留言反馈
『商业空间』早教机构案例展示
更新:2019-04-18 13:46:40      点击:
『商业空间』早教机构案例展示
详情
早教机构案例展示










伽宝园是一家美式早教机构。所以在设计方面,不管是门面、吊顶、还是在各个空间细节上,更多的附和整体的教育氛围,营造一个童趣、有文化内涵的早教培训空间。

玻璃实木楼梯

兔子造型门洞

大门完成效果

简化版美国地图艺术吊顶

廊道一角

教室一角

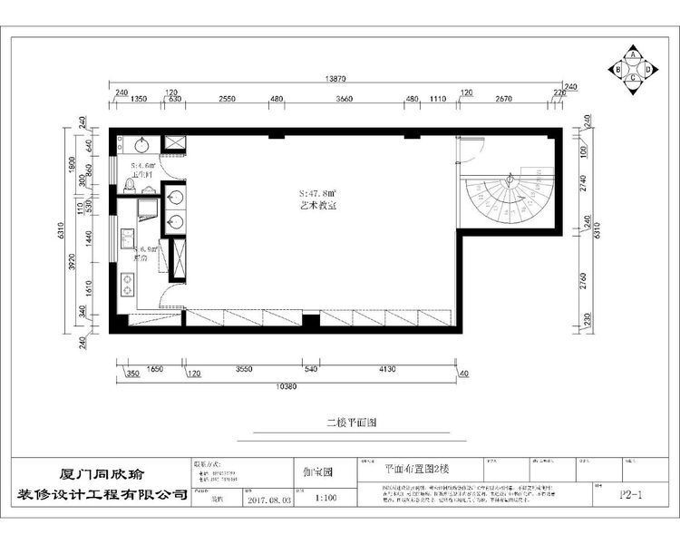
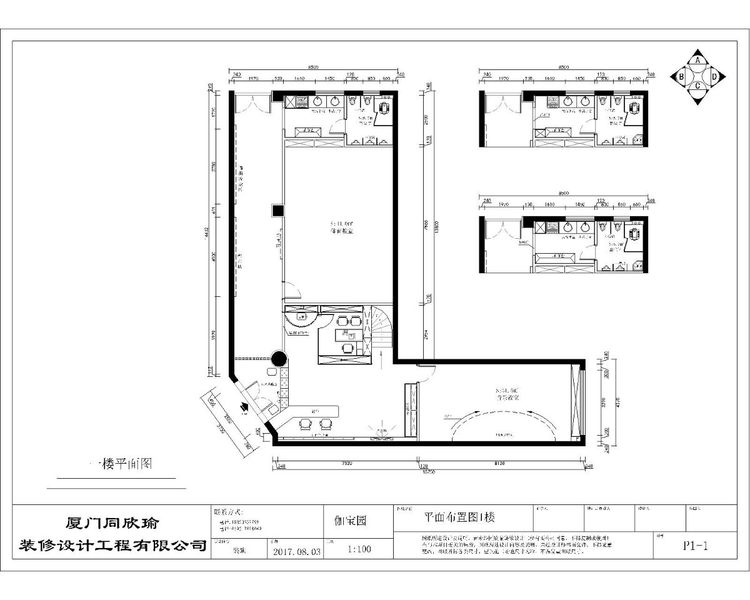
一、二楼平面布局图


想了解更多装修资讯,请关注欣瑜装饰公众号

 



相关
网站首页 | 网站导航 | 留言反馈