设计师自己的小家,20万73平清浅北欧风
▲ 建筑面积73平,使用面积54平,总造价20万,设计师在大门口留一盏壁灯。——END——本文转自网络如有侵权联系客服
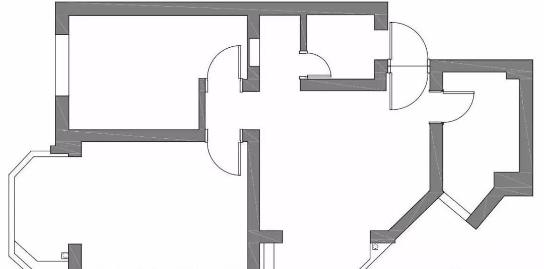
▲ 平面结构图
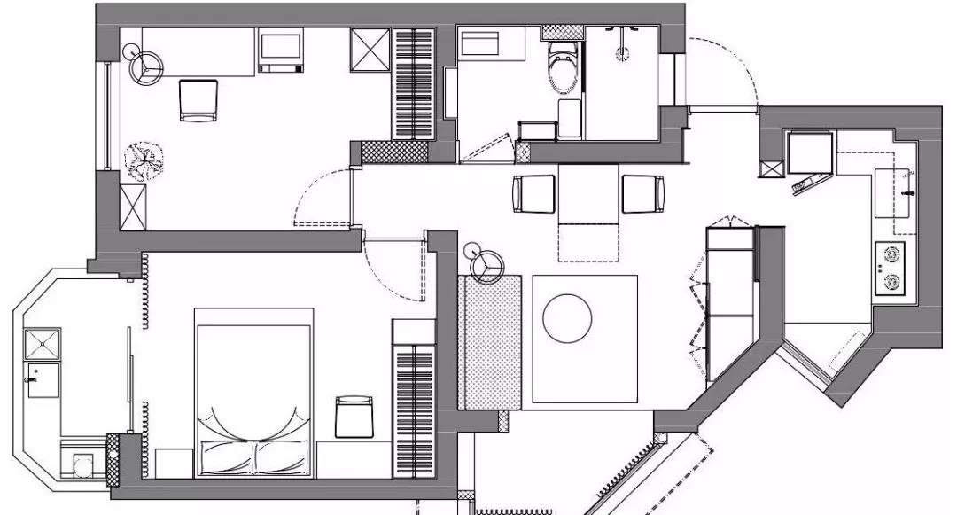
▲ 平面布置图
▲ 玄关,鞋柜设置在电视柜的侧面,与厨房的墙拓开一点距离,让厨房的移门可以隐藏收进柜内
▲ 客餐厅在同区域,把阳台纳到客厅空间使用,改造成地台兼收纳储物机能,将来可以做宝宝的玩耍区域
▲ 客厅,水泥自流坪加铺大张黑白几何地毯,用轨道灯和灯带来代替主灯设计
▲ 简约布艺沙发搭配黑色茶几,背景墙采用灰绿壁纸铺贴
▲ 地台的角落变成无处可放的家具的容身之地
▲ 餐厅,吱音的伸缩餐桌可供多人用餐,整面护墙板拉槽设计,与卫生间隐形门形成一体
▲ 厨房墙面铺贴ins风小方砖,清新调橱柜底部嵌入光源,方便台面操作
▲ 利用垭口设计黑色隔板柜,遮挡冰箱侧面的同时多一个酒柜
▲ 书房,舒适的座椅与宜家买的书桌,白色百叶窗
▲ 背景墙挂置设计师心爱的单车
▲ 这个衣柜是为宝宝设计,低处的把手是为让他可以自己开门
▲ 主卧,把全身镜藏在门背后,门上设计挂钩,把空间利用最大化
▲ 选用吱音的大床,背景墙铺贴灰绿壁纸,一侧设计白色烤漆衣柜点缀精致的铜拉手
▲ 书桌与衣柜相连,柜体底下留空部分作行李收纳区,书桌取代床头柜,增添更多生活机能
▲ 卫生间,浴室柜根据观博的洗手池设计的尺寸,人造石下凹台盆,颜值很高
▲ 墙面凹洞是原本房子就有的,增加层板后,可以放些日常用品
▲ 用玻璃移门作淋浴隔断,墙面设置双层挂篮与圆镜,将热水器隐藏在吊顶内
想了解更多装修资讯,请关注同欣瑜装饰公众号
- 上一篇:玄关瓷砖居然可以这样铺,分分钟邻居挤破门! [2019-04-16]
- 下一篇:知否知否,卧室当选最美新中式! [2019-04-11]



