极致简约,纯粹的格调!
在各种空间设计中,样板间是一种独特存在,既要凸显项目买点这类商业属性,同时也要满足居家设计的生活化要求,是完美平衡商业和生活的室内设计品类。
入户玄关
玄关过道
客厅及餐厅区域



客 厅
入户后通过通透玻璃的处理方式使书房及客厅浑然一体,挑高的客厅设计在视觉上最大化客厅的面宽。客厅主景以白色石材作像素化的切割处理进行图案的拼贴,结合右侧深色的金属层架,使空间灵动,极具视觉冲击。——END——本文转自网络,如有侵权请联系客服。
餐 厅
走进用餐空间,餐厅以对称的设计做法,通过序列的木饰面分块方式,使其与整个空间统一,从而使整体空间感加大。
吧 台

书 房
简约的黑白灰空间拉开张力,饰品填充了主人的兴趣爱好。书房是爱马一族的天地,摆设着盛装舞步时候穿戴的装具,载誉而归的奖杯,预设了一种当代生活该有的成熟性格——稳重不失内心的激情。

一层老人房
素,是材料上的简约,归类同质要素,形成一种互相依托和照应。在首层老人房,独活属吊灯暖光的笼罩下,镜面材质台灯光可鉴人、细腻的石材反射出光斑,在互相折射华丽。简素却不直白,含蓄着肌理的变化,在细节处精致。
楼 梯
顺台阶而上,二层以过道连接两个秉性各异的卧室,设计师把客厅挑空打开与二层起居室连通为一体,形成趣味的互动。

二层休息厅
雅,亦是当代设计的重要特性。雅是中正的意思,即所谓雅正。叠合多重色彩,所形成的高级的米灰色系,就是雅的一种体现。灰是表象,材质自带的色彩气质则是内涵。材料色调整一,空间视觉感受上守正出奇,雅致中透漏出丰富意蕴。





二层主卧
作为一个私密休息空间,主卧空间保留了大进深的空间感,卧室独立于阅读区,更加符合现代的生活习惯。



二层小孩房
小孩房以自然舒适为要义,色调舒缓温和,少女感十足。墙纸、床品及灯具恰到好处地轻柔交织,契合空间芭蕾舞主题,让这个热爱艺术,充满好奇心和想象力的小女孩梦想成真。
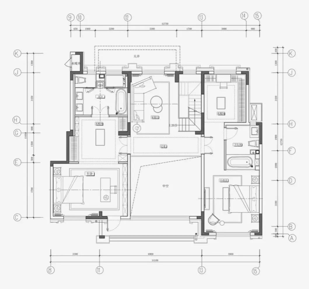
平面图

一层平面图
想了解更多装修资讯,请关注同欣瑜装饰公众号
- 上一篇:以简胜繁,简约设计的超高境界 [2019-05-28]
- 下一篇:126平现代简约三室,线条时尚质感高级 [2019-05-24]



